Instalaciones con Autodesk Revit MEP
Próximas ediciones
Del 3 de noviembre al 1 de diciembre, martes y jueves de 10:00h a 14:00h
DURACIÓN: 36h
Profesores
Javier Lamas. Ingeniero Industrial
- Autodesk Certified Instructor
- Experto en CYPE
Modalidad Presencial
Precio: 490€
Presencial en Valencia
Modalidad Streaming
Precio: 430€
Streaming en directo desde casa
-
modelar instalaciones eléctricas (iluminación y potencia).
-
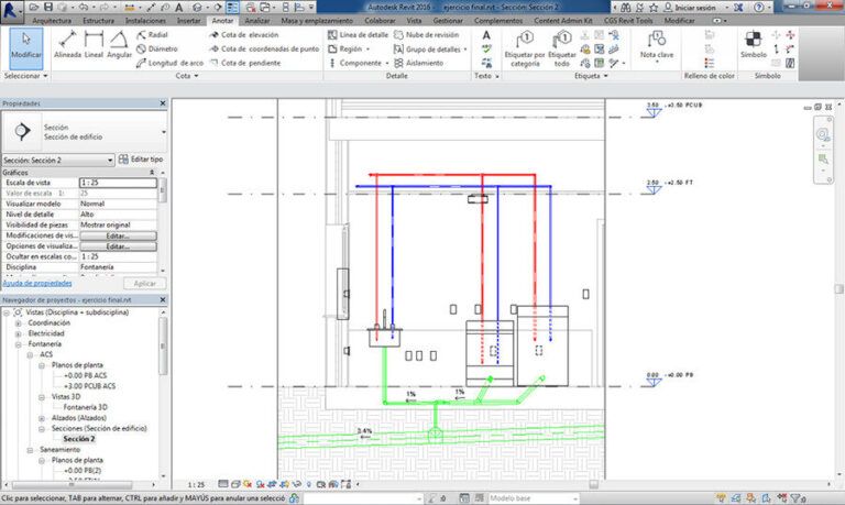
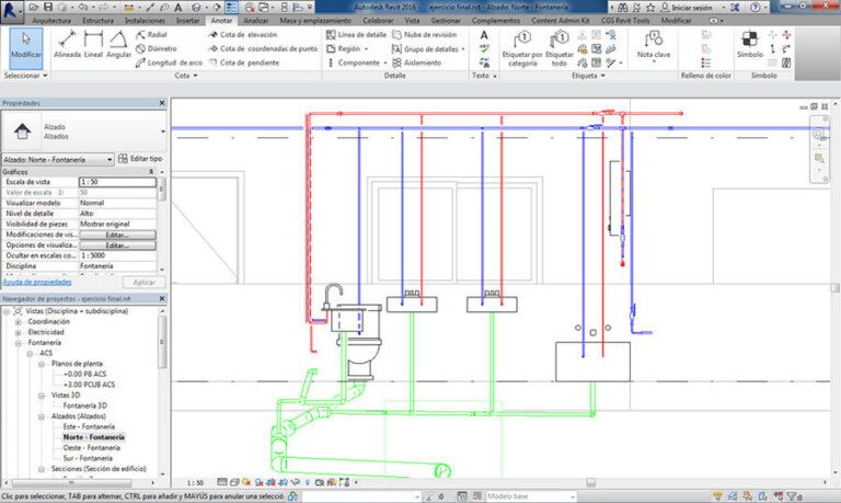
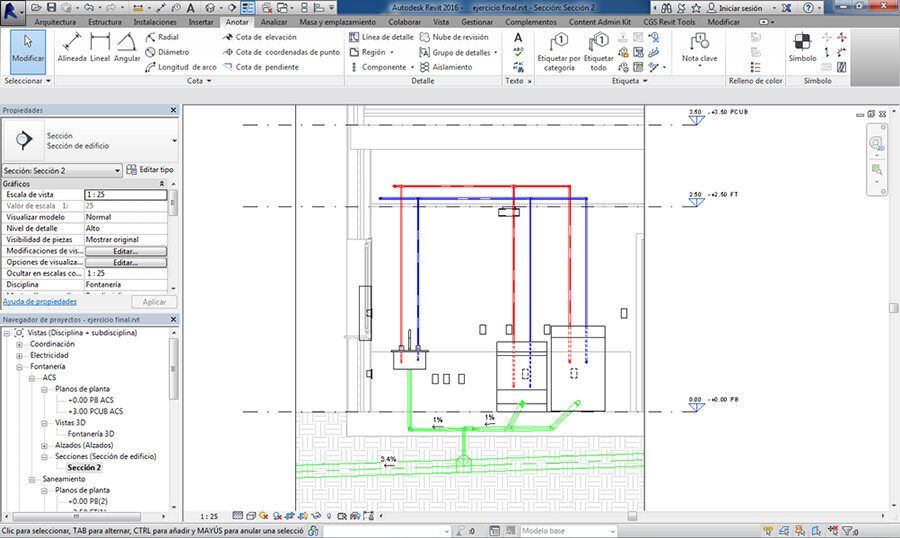
modelar instalaciones de fontanería (AF, ACS y saneamiento).
-
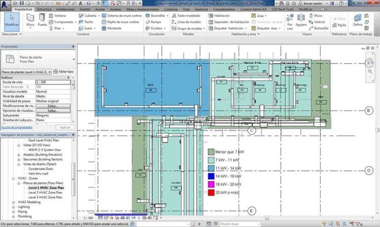
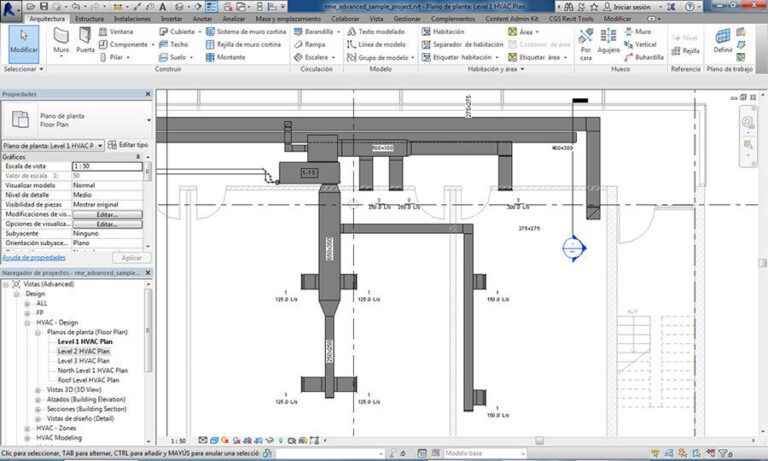
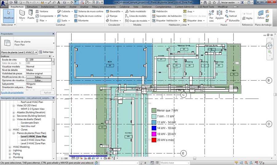
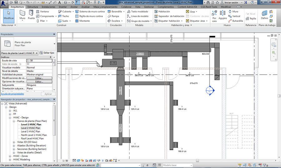
trabajar con sistemas mecánicos (ventilación y climatización).
-
introducción a otras instalaciones como protección contra incendios o red de datos.
-
iniciar a los alumnos en el diseño de instalaciones.
-
repasar algunos conceptos sobre diseño y cálculo de instalaciones para aplicarlos en un programa que nos asiste con el diseño.
- Grabamos las clases de todo el curso: tendrás acceso hasta 6 meses después
- Soporte postcurso permanente
- Diploma oficial certificado por Autodesk
Además, en modalidad presencial, tendrás un ordenador por alumno y material de clase: moleskine y bolígrafo.
-
Revit es el programa de Autodesk para BIM.
-
Trabajar con tecnología y metodología BIM significa trabaja en 3 dimensiones, y tener un único archivo con toda la información del proyecto permanentemente actualizada.
-
En Revit no se dibujan líneas, arcos o círculos, sino elementos constructivos concretos, con una información muy completa.
-
Esta información no se ciñe solamente a los planos, sino que también permite obtener mediciones de materiales, e información sobre áreas y habitaciones, zonas de climatización, cálculos de flujo, o cargas estructurales, entre otros.
-
Consiste en tener, en un único lugar, toda la información de nuestro proyecto.
-
Trabajar en BIM es tener una «maqueta virtual» completa del edificio,
-
nivel de complejidad elevado.
-
formación de alto rendimiento.
-
debes acreditar formación básica en Revit.
-
recomendable tener algunas nociones de diseño e incluso cálculo de instalaciones.
-
si no tienes la seguridad de que tu nivel sea el adecuado, te recomendamos que nos comentes tu caso para poder asesorarte e incluso plantear otras opciones (clases particulares o curso en diferido, entre otras)
También te puede interesar...

Autodesk AutoCAD 2026
36h
420€

Autodesk Civil 3D + Infraworks
40h
520€

Autodesk Revit 2026
48h
540€

Autodesk Revit 2026 – Interiorismo
48h
590€



















