Interoperabilidad Autodesk Revit-CYPE
Profesores
Javier Lamas. Ingeniero Industrial
- Autodesk Certified Instructor
- Experto en CYPE
Modalidad Presencial
Precio: 520€
Presencial en Valencia
Modalidad Streaming
Precio: 480€
Streaming en directo desde casa
- Aprender las bases del estándar IFC.
- Preparar la configuración de exportación IFC en modelos de Revit para el máximo aprovechamiento de información en los softwares de CYPE.
- Auditar modelos de Revit externos para detectar los posibles fallos en la interoperabilidad Revit-CYPE.
- Realizar correcciones en los modelos de Revit externos para asegurar el máximo aprovechamiento de la información en los softwares de CYPE.
- Importar aportaciones a los softwares de CYPE correspondientes.
- Tratamiento de los IFCs generados con CYPE dentro de Revit mediante el Plugin Open BIM – Revit.
- Generación y tratamiento de DirectShapes.
- Conversión de estructura a nativo.
- Creación de documentación en Revit.
- Grabamos las clases de todo el curso: tendrás acceso hasta 6 meses después
- Soporte postcurso permanente
Además, en modalidad presencial, tendrás un ordenador por alumno y material de clase: moleskine y bolígrafo.
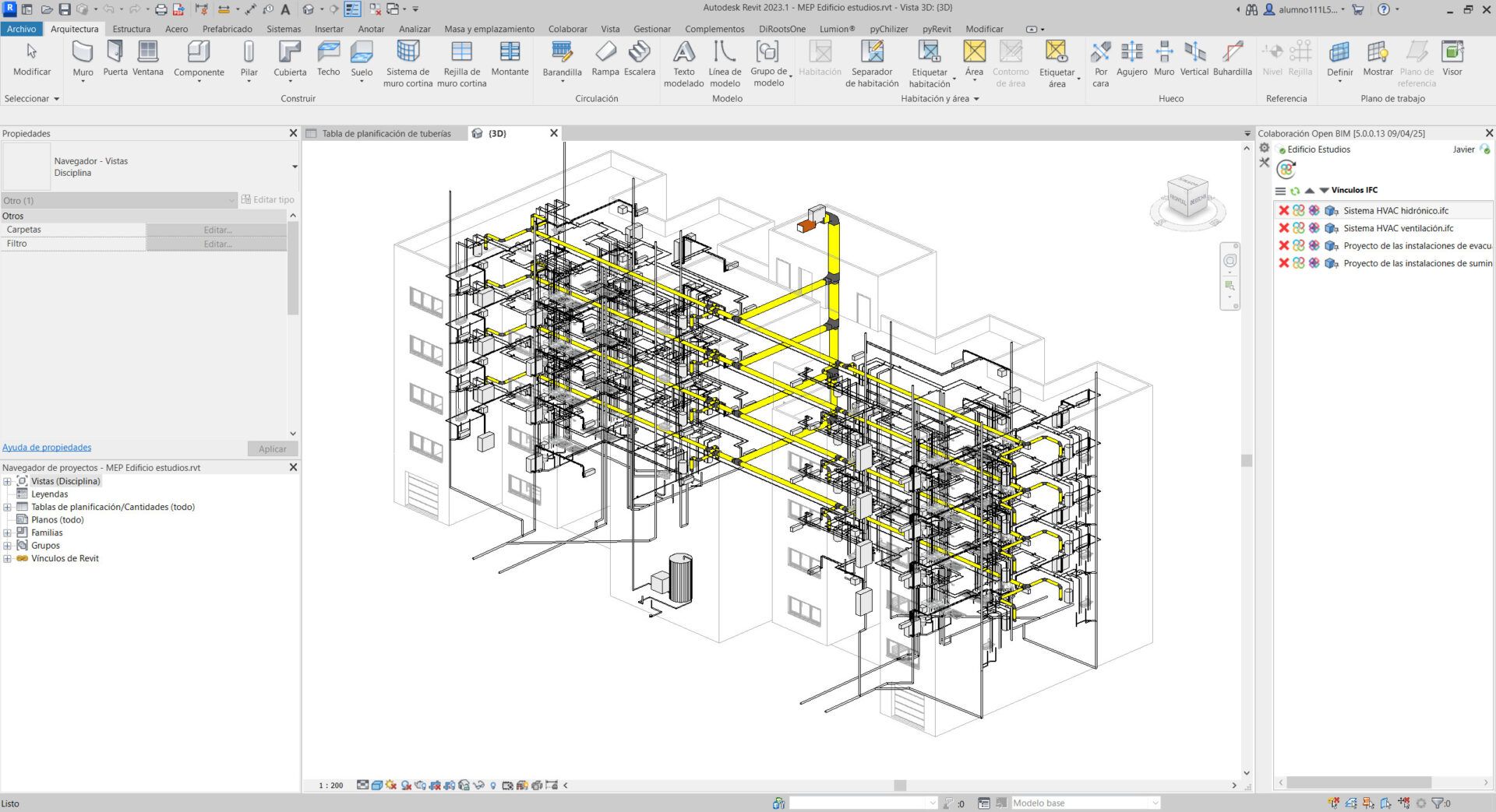
- Revit es el programa de Autodesk para BIM.
- CYPE Software ofrece soluciones BIM para el modelado y cálculo de instalaciones y estructura.
- El aprovechamiento de información partiendo de modelos arquitectónicos de Revit por los softwares de CYPE permite optimizar los flujos de trabajo en el diseño de los proyectos.
- La vuelta de información a Revit generada por los softwares de CYPE permite documentar y centralizar el proyecto en archivos .rvt.
- Trabajar en flujos BIM conectando la arquitectura con los modelos de cálculo permite dar un salto de calidad en nuestros proyectos de la mano de las herramientas especializadas.
- Debes tener conocimientos básicos en Revit.
- Debes estar familiarizado con los softwares de CYPE.
- Si no tienes la seguridad de que tu nivel sea el adecuado, te recomendamos que nos comentes tu caso para poder asesorarte e incluso plantear otras opciones (clases particulares o curso en diferido, entre otras).
También te puede interesar...

Arquitectura (Máster CYPE)
45h
675€

Autodesk AutoCAD 2026
36h
420€

Autodesk Civil 3D + Infraworks
40h
520€

Autodesk Revit 2026
48h
540€

Autodesk Revit 2026 – Interiorismo
48h
590€

















